Ready to build your dream home? This stunning raised bungalow on sought after Spruce Hill Road might be the one! Design the interior finishes to your liking with the help of our in house interior designer Julia Bailey (Violet Lily Designs).
Bedrooms: 3
Bathrooms: 2
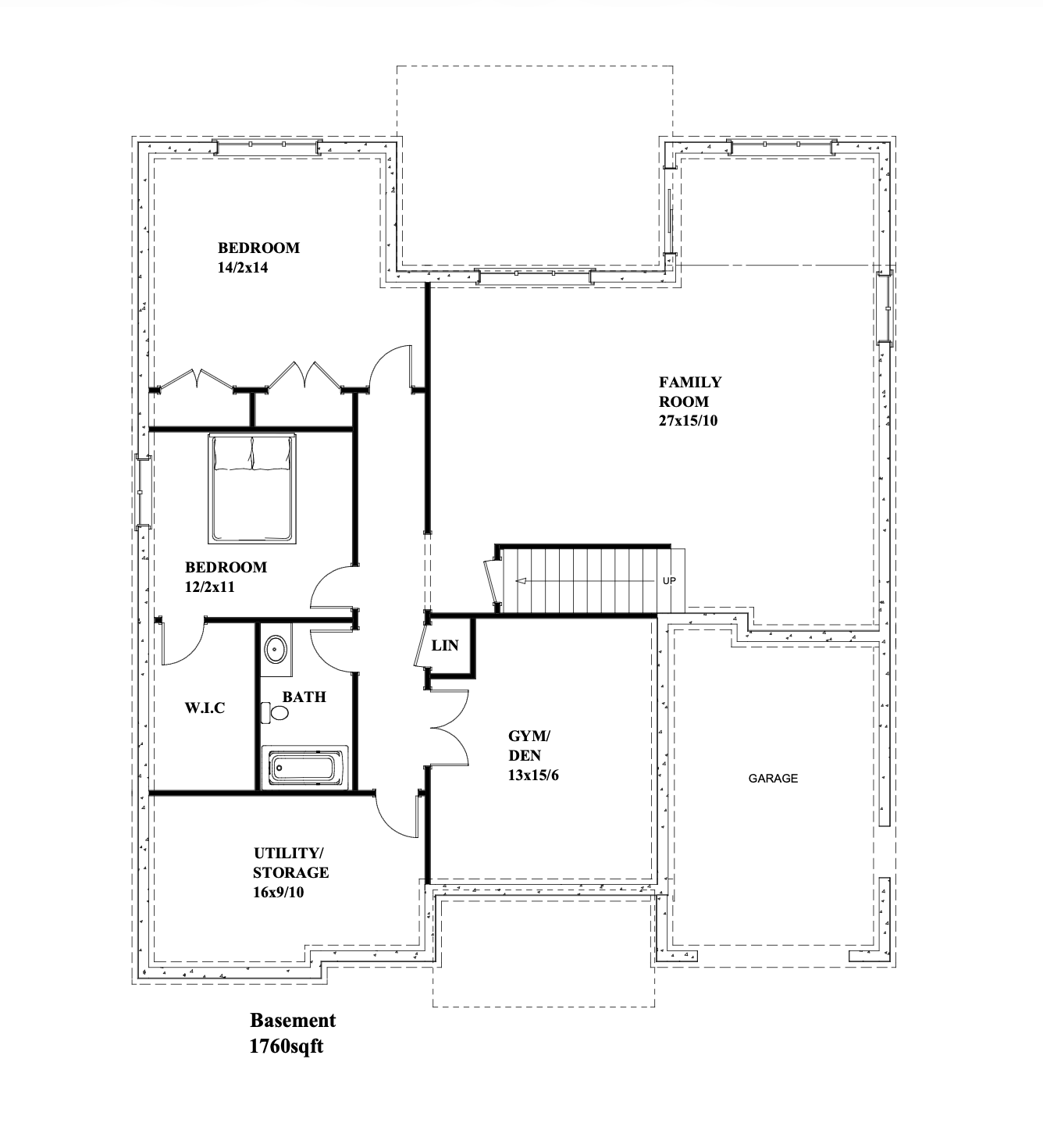
Size: 1760 sq ft
Main Floor: 1760 sq ft
Undeveloped Basement: 1760 sq ft
Garage : 247 sq ft



