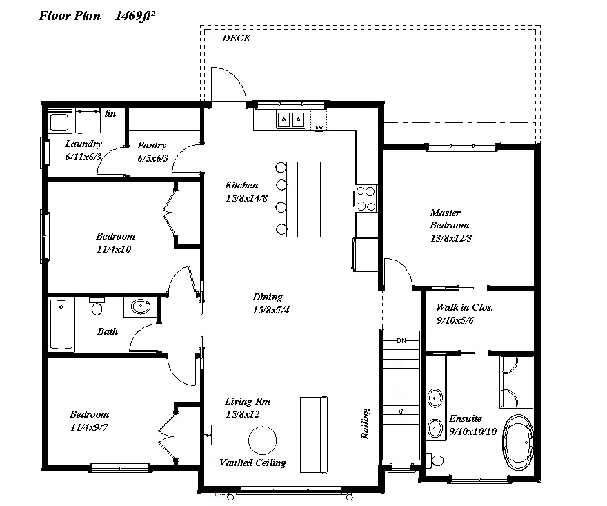
Construction is underway on this stunning raised bungalow on sought after Sgt Donald Lucas Drive. Enjoy a large foyer upon entry and a vaulted ceiling in the main living room upstairs. Main floor laundry, walk in pantry, and a spa-like ensuite make this home one you won't want to miss. Design the interior finishes to your liking with the help of our in house interior designer Julia Bailey (Violet Lily Designs).
Bedrooms: 3
Bathrooms: 2
Size: 1639 sq ft
Main Floor: 1469 sq ft
Developed Basement: 170 sq ft
Undeveloped basement: 1068 sq ft
Garage : 358 sq ft



